Pläne herunterladen und inspirieren lassen!
Hier finden Sie unsere Haus-Varianten im Maßstab 1:100.
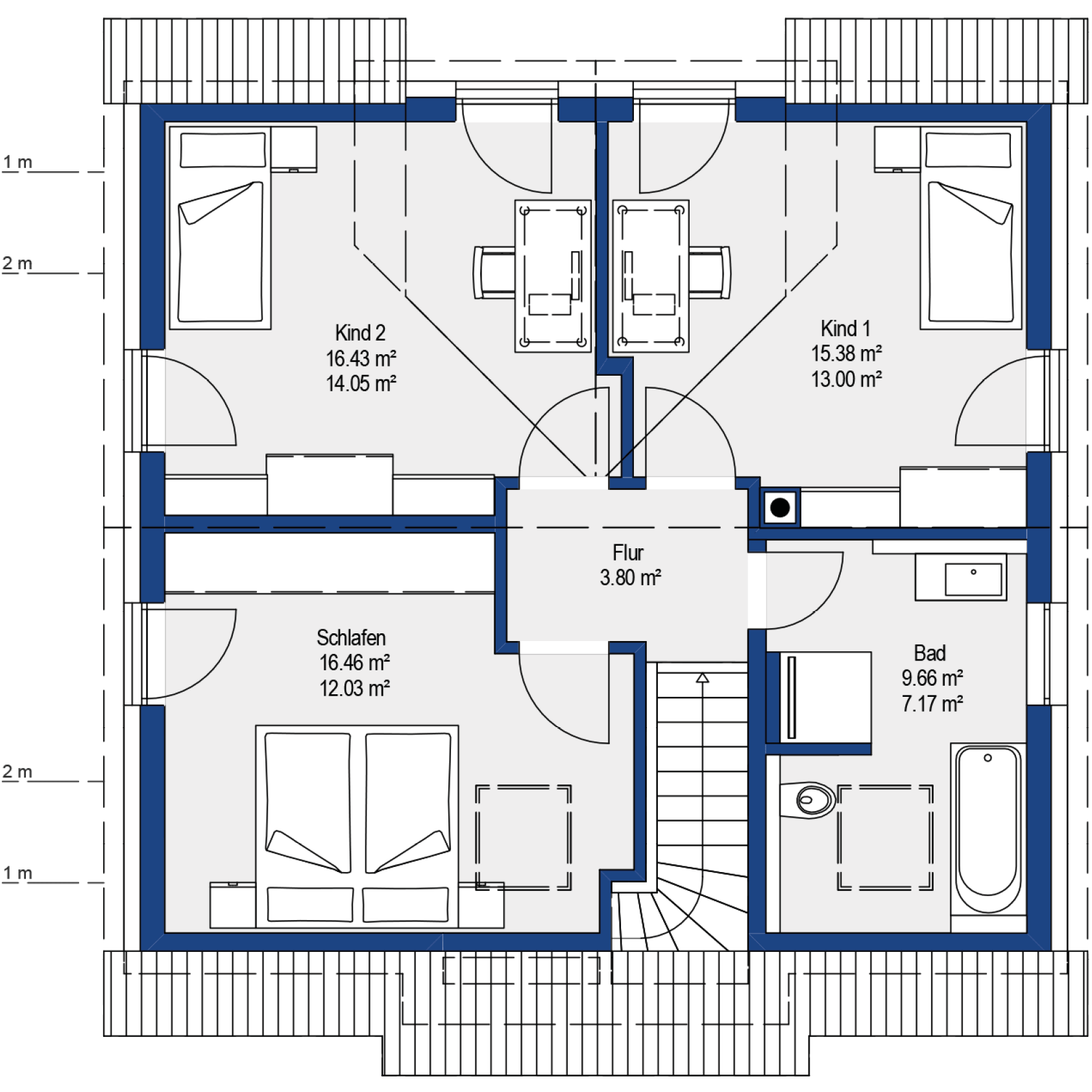
Nutzen Sie die Pläne für eine detaillierte Ansicht und zur besseren Planung Ihres Hauses.
Andi Standard
mit Keller
- Satteldach 45°
- Kniestock 50 cm
- Außenmaße 9,31 x 9,31 m
- Wohnfläche 110,78 m²
- Nettogrundfläche 190,65 m²
Andi Varinate 1
mit Keller
- Satteldach 45°
- Kniestock 50 cm
- Außenmaße 9,31 x 9,31 m
- Wohnfläche 114,50 m²
- Nettogrundfläche 190,05 m²
Andi Variante 2
mit Keller
- Satteldach 45°
- Kniestock 50 cm
- Außenmaße 9,31 x 9,31 m
- Wohnfläche 113,63 m²
- Nettogrundfläche 190,18 m²
Andi Vatriante 3
mit Keller
- Satteldach 45°
- Kniestock 50 cm
- Außenmaße 9,31 x 9,31 m
- Wohnfläche 112,48 m²
- Nettogrundfläche 190,03 m²
Andi Variante 4
mit Keller
- Satteldach 45°
- Kniestock 50 cm
- Außenmaße 9,31 x 9,31 m
- Wohnfläche 112,29 m²
- Nettogrundfläche 189,39 m²
















