Pläne herunterladen und inspirieren lassen!
Hier finden Sie unsere Haus-Varianten im Maßstab 1:100.
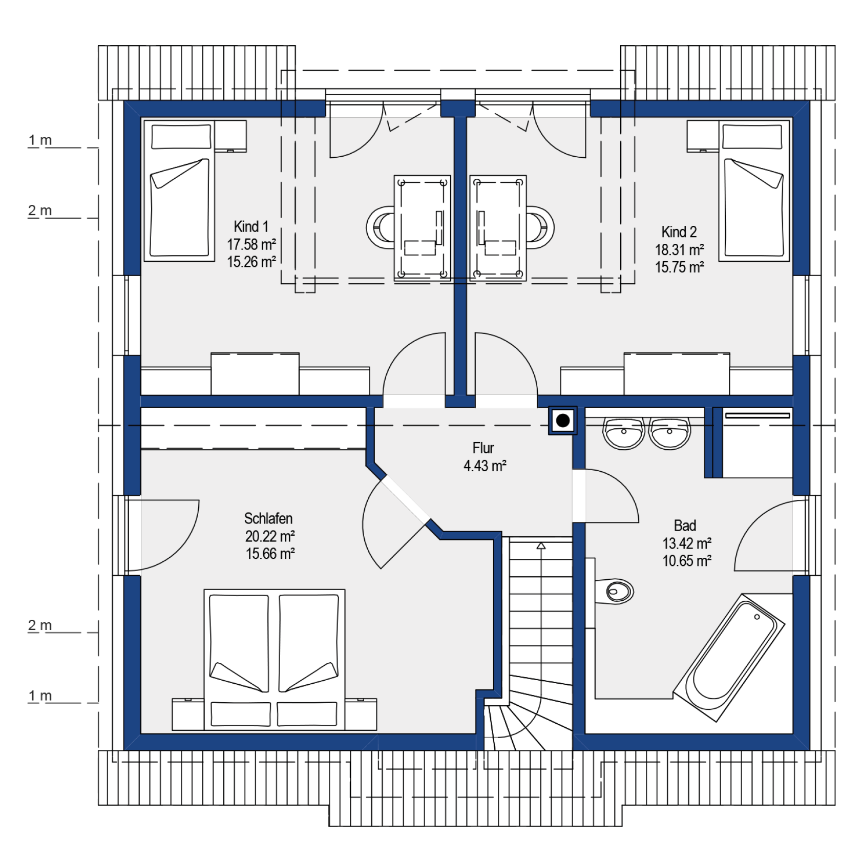
Nutzen Sie die Pläne für eine detaillierte Ansicht und zur besseren Planung Ihres Hauses.
Daniel Standard
mit Keller
- Satteldach 45°
- Kniestock 50 cm
- Außenmaße 10,06 x 10,06 m
- Wohnfläche 134,17 m²
- Nettogrundfläche 221,10 m²
Daniel Variante 1
mit Keller
- Satteldach 45°
- Kniestock 50 cm
- Außenmaße 10,06 x 10,06 m
- Wohnfläche 132,85 m²
- Nettogrundfläche 220,29 m²
Daniel Variante 2
mit Keller
- Satteldach 45°
- Kniestock 50 cm
- Außenmaße 10,06 x 10,06 m
- Wohnfläche 133,99 m²
- Nettogrundfläche 221,58 m²
Daniel Variante 3
mit Keller
- Satteldach 45°
- Kniestock 50 cm
- Außenmaße 10,06 x 10,06 m
- Wohnfläche 135,59 m²
- Nettogrundfläche 224,36 m²
Daniel Variante 4
mit Keller
- Satteldach 45°
- Kniestock 50 cm
- Außenmaße 10,06 x 10,06 m
- Wohnfläche 136,63 m²
- Nettogrundfläche 227,03 m²
















