Pläne herunterladen und inspirieren lassen!
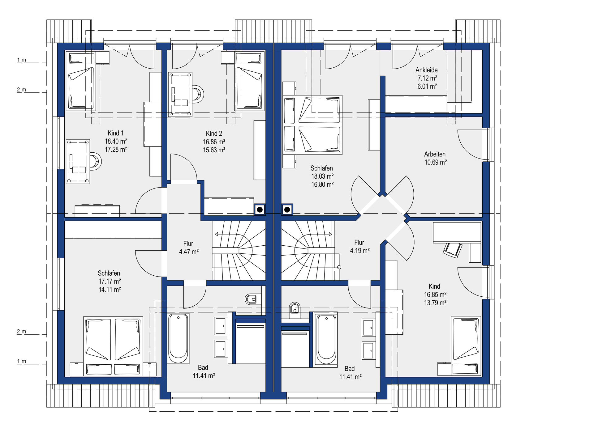
Hier finden Sie unsere Haus-Varianten im Maßstab 1:100.
Nutzen Sie die Pläne für eine detaillierte Ansicht und zur besseren Planung Ihres Hauses.
Doris
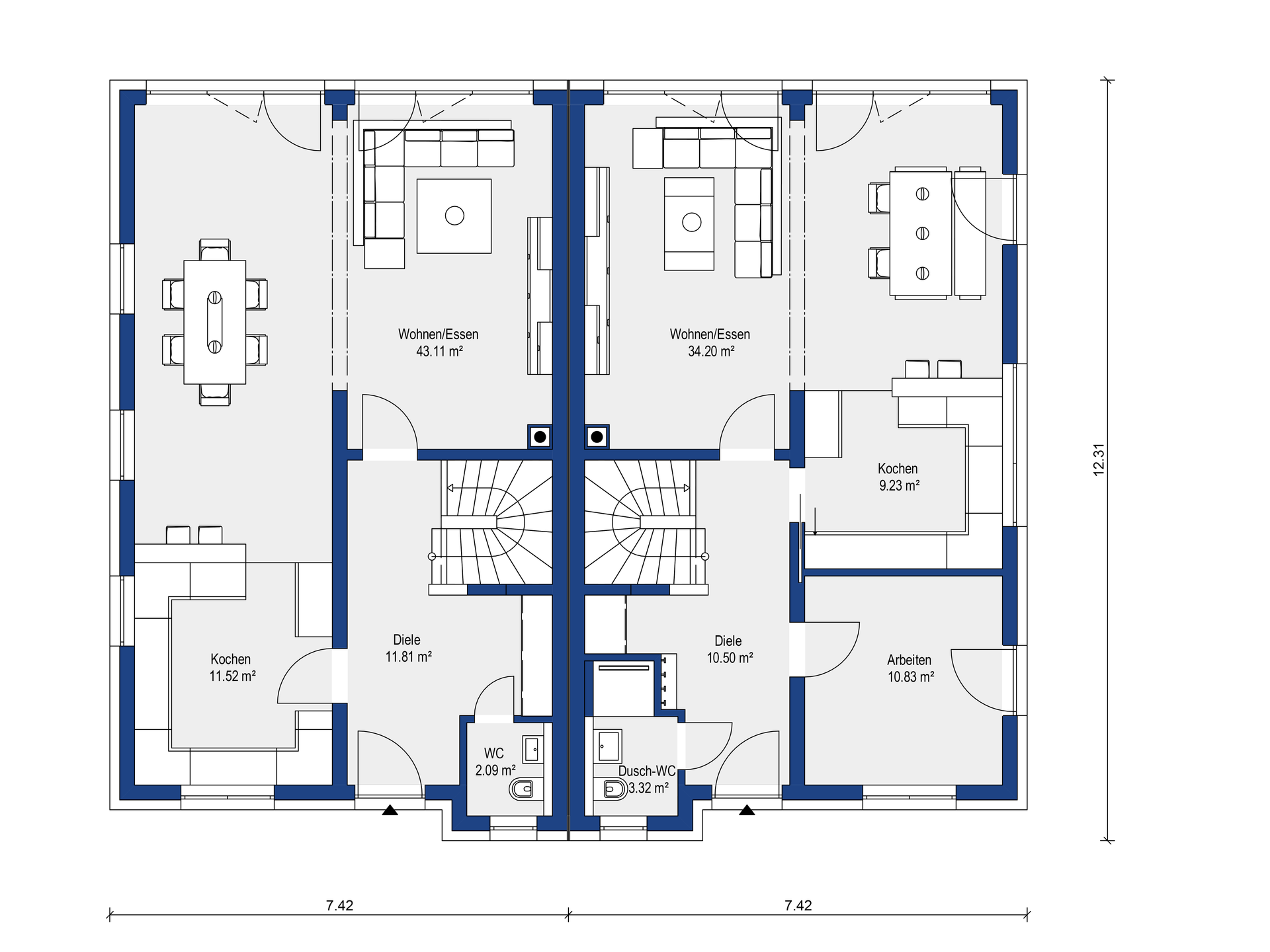
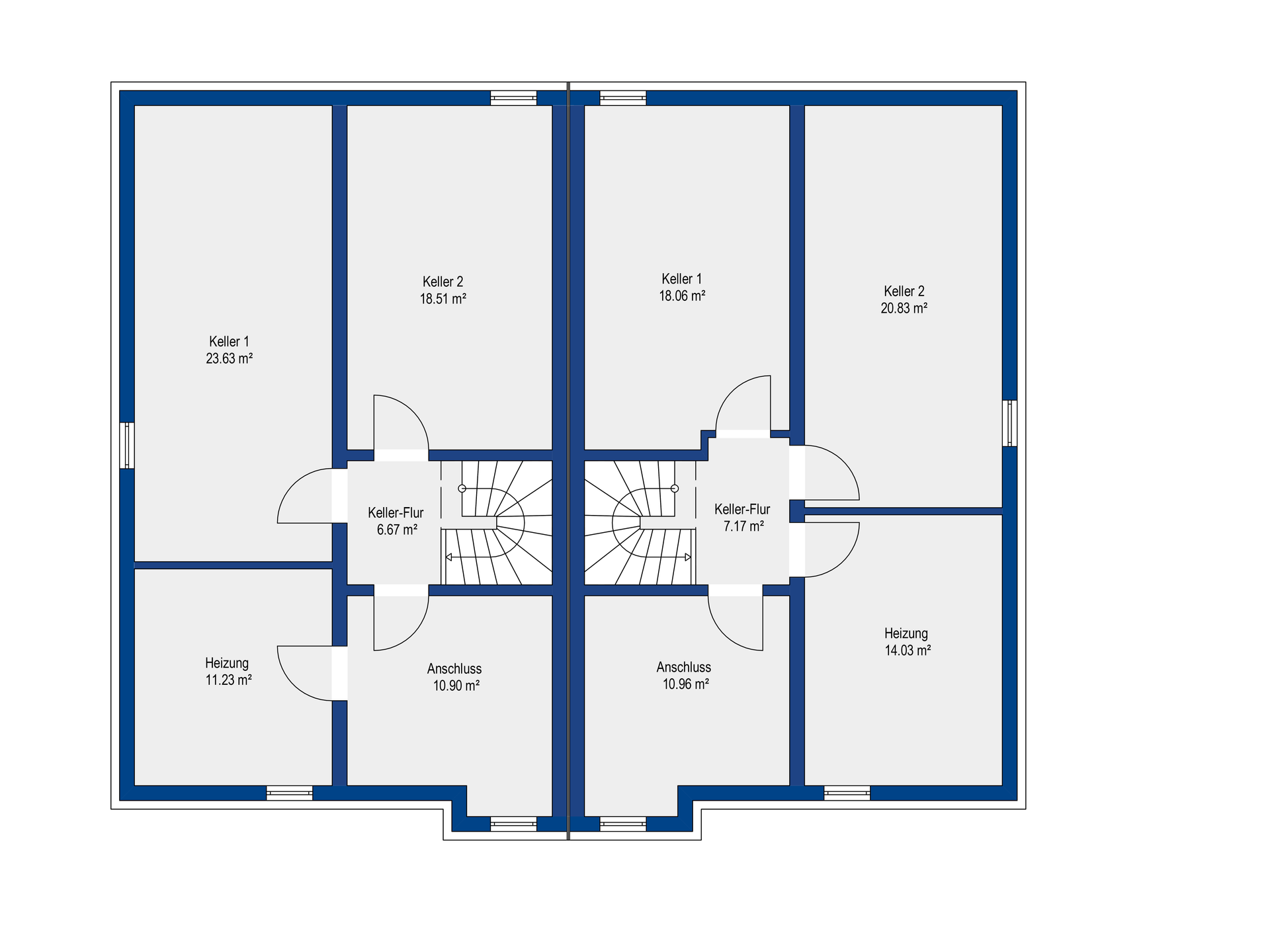
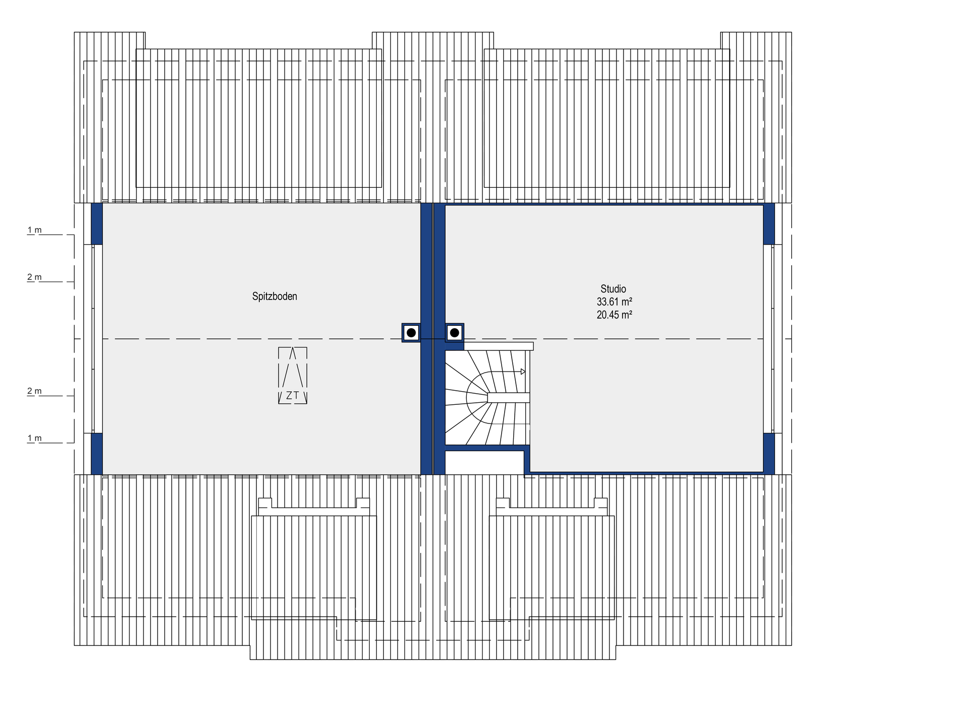
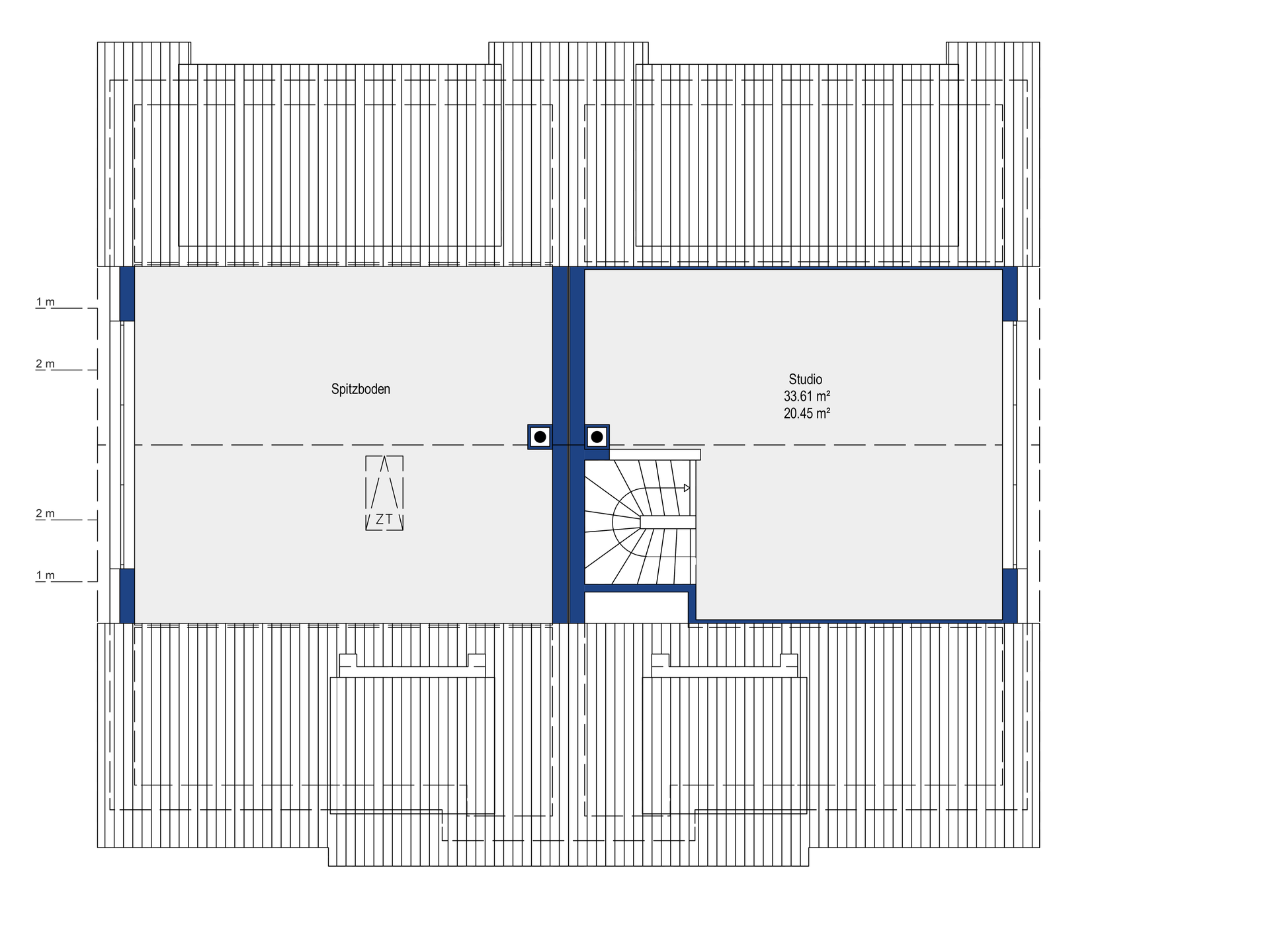
mit Keller - Spitzbodenausbau möglich
- Satteldach
- Dachneigung 45°
- Kniestock 50 cm
- Außenmaße 7,42 x 12,31 m
- Wohnfläche 128,66 m²
- Nettogrundfläche 245,77 m²
Doris Variante Badgaube
mit Keller - Spitzbodenausbau möglich
- Satteldach
- Dachneigung 45°
- Kniestock 50 cm
- Außenmaße 7,42 x 12,31 m
- Wohnfläche 128,66 m²
- Nettogrundfläche 245,77 m²






