Pläne herunterladen und inspirieren lassen!
Hier finden Sie unsere Haus-Varianten im Maßstab 1:100.
Nutzen Sie die Pläne für eine detaillierte Ansicht und zur besseren Planung Ihres Hauses.
Jasmin
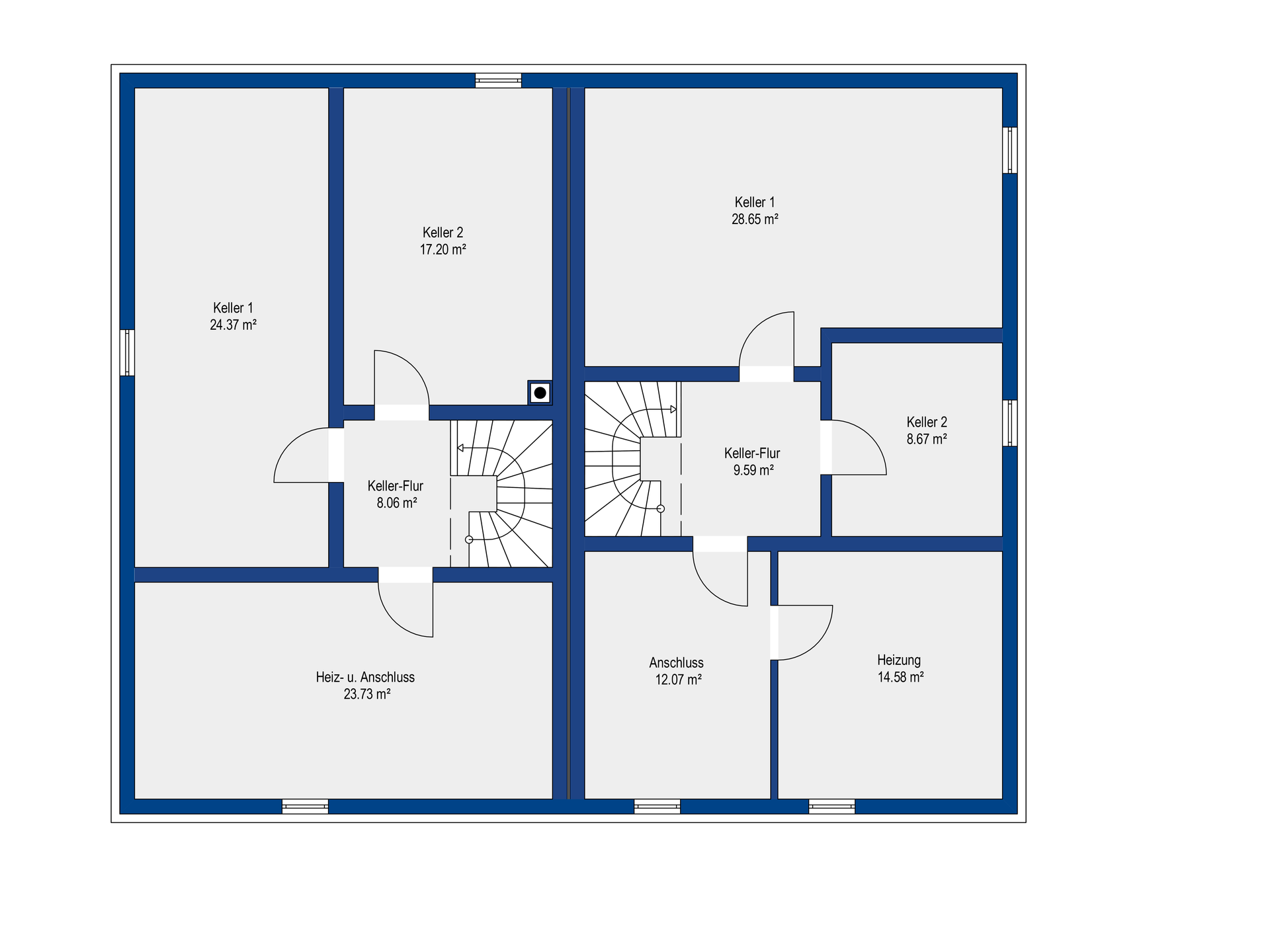
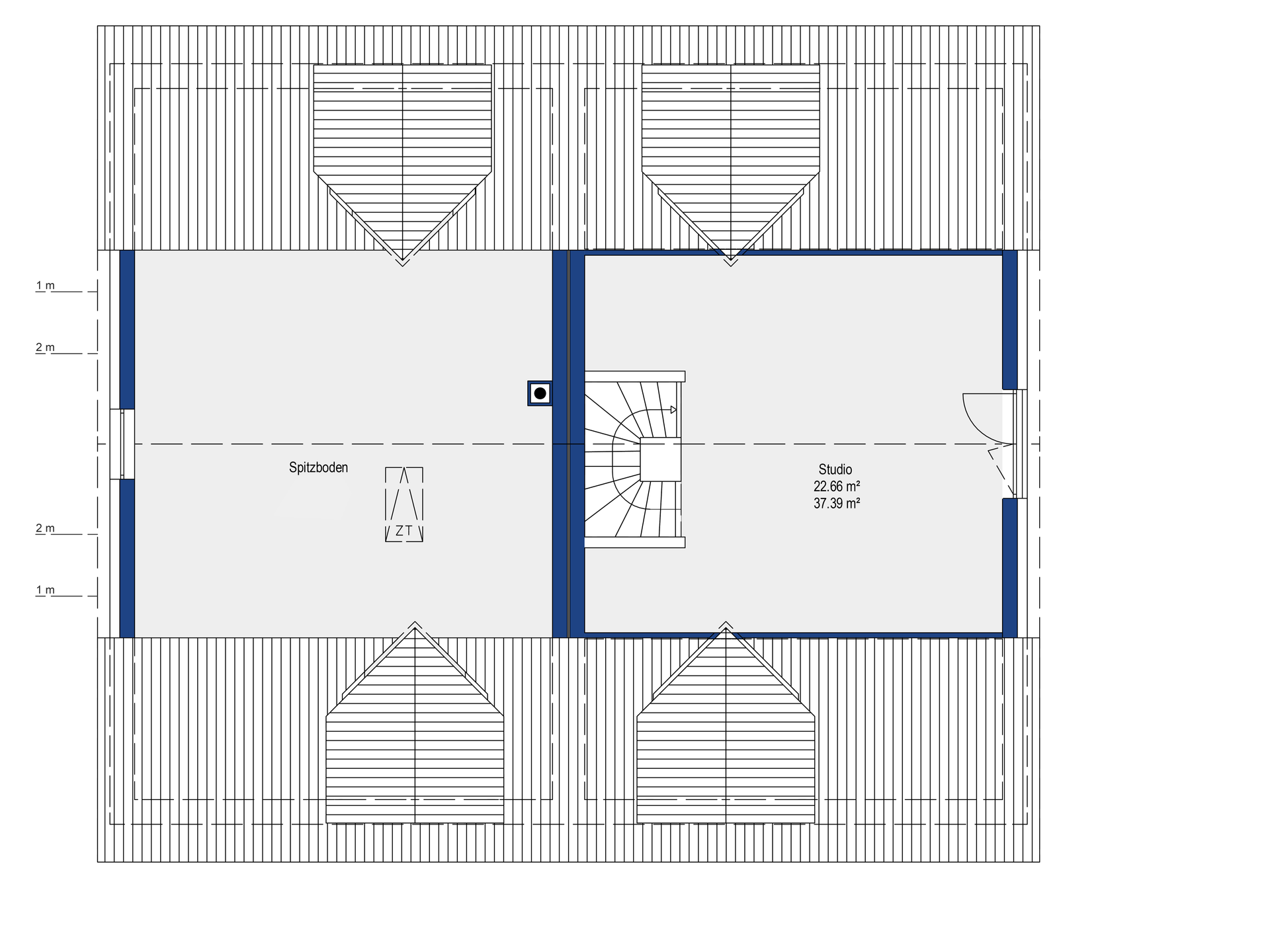
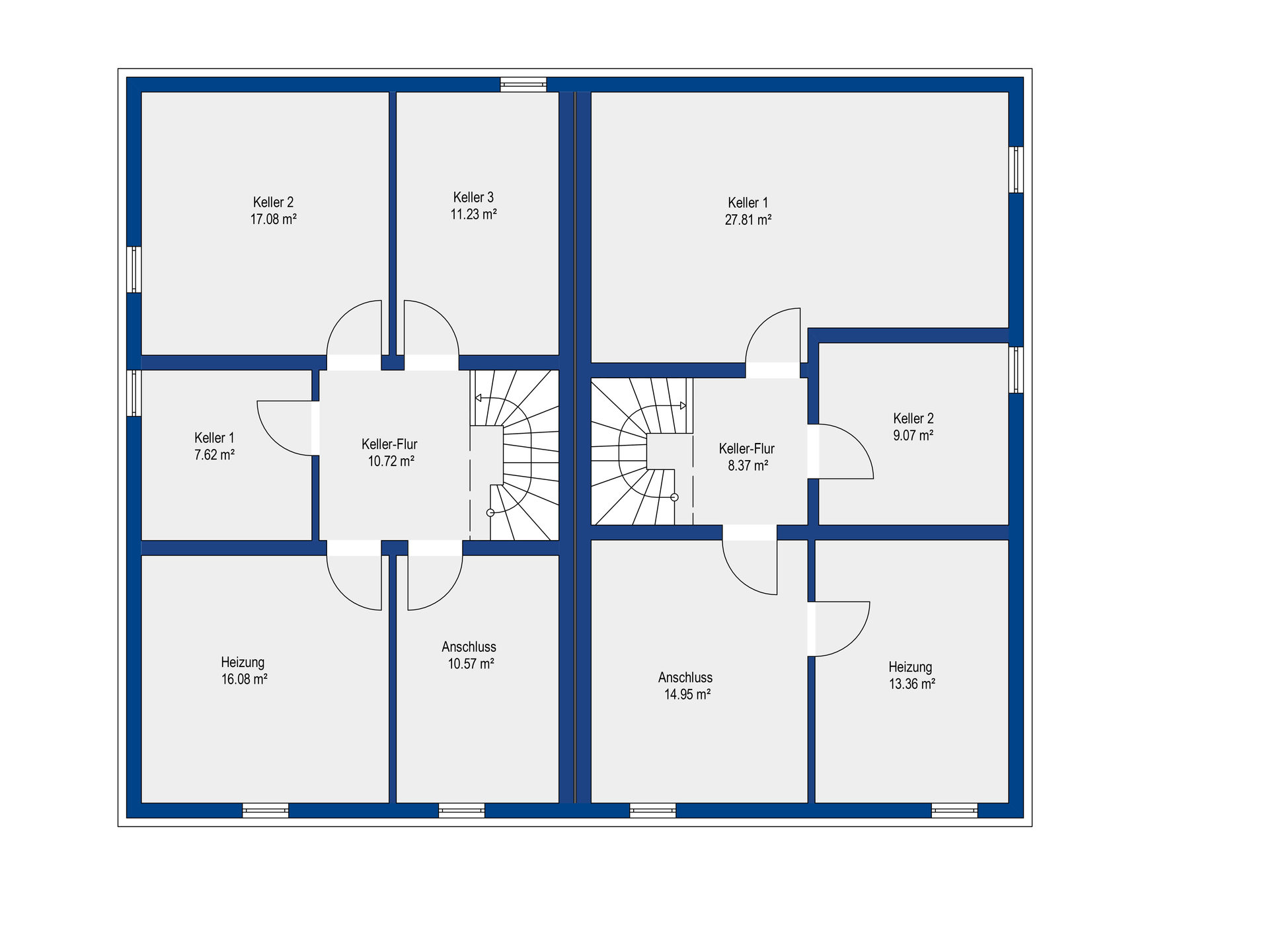
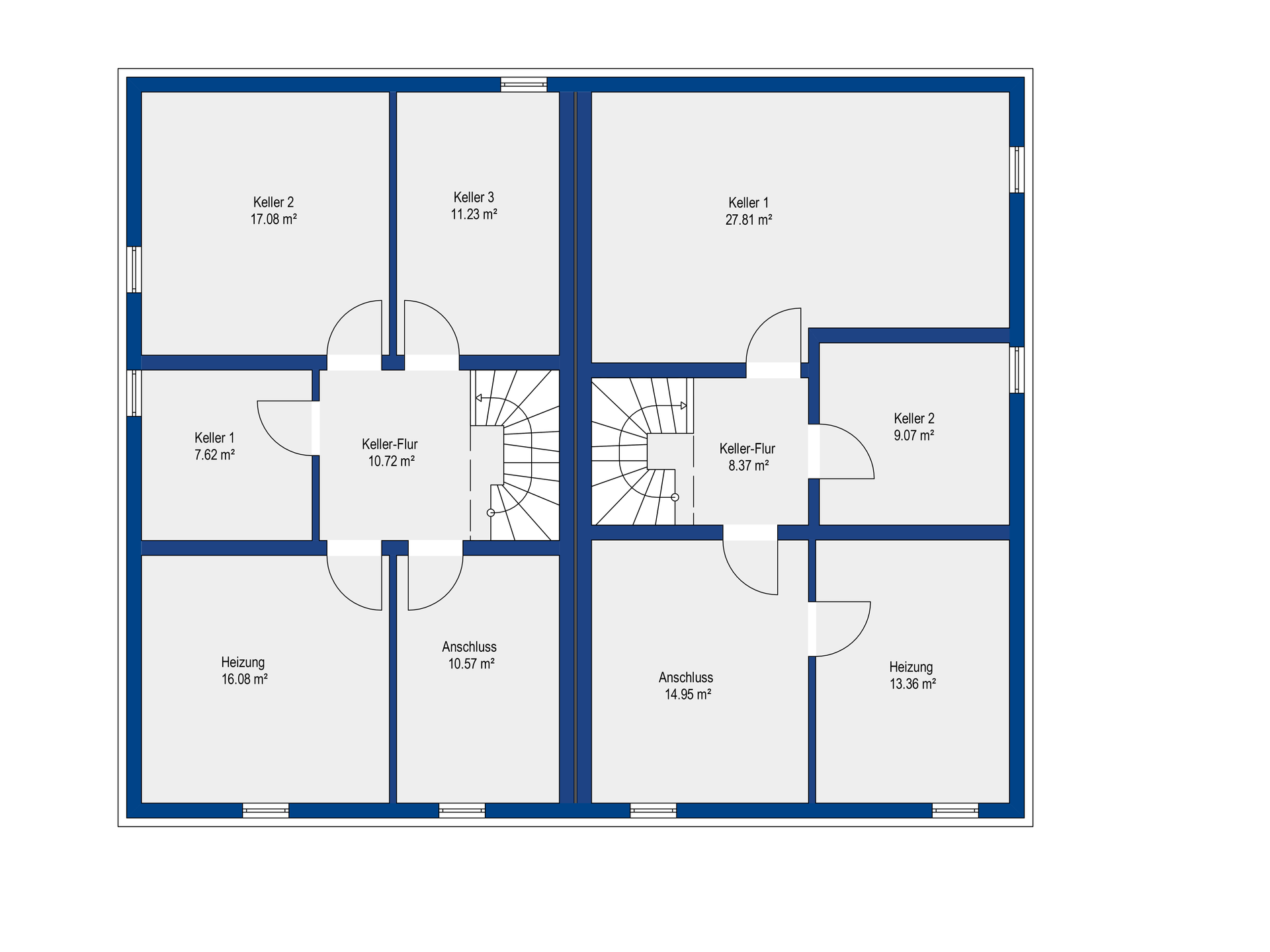
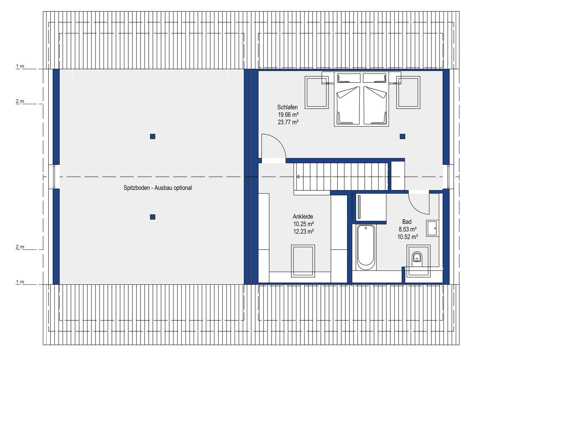
mit Keller - Spitzbodenausbau möglich
- Satteldach
- Dachneigung 45°
- Kniestock 50 cm
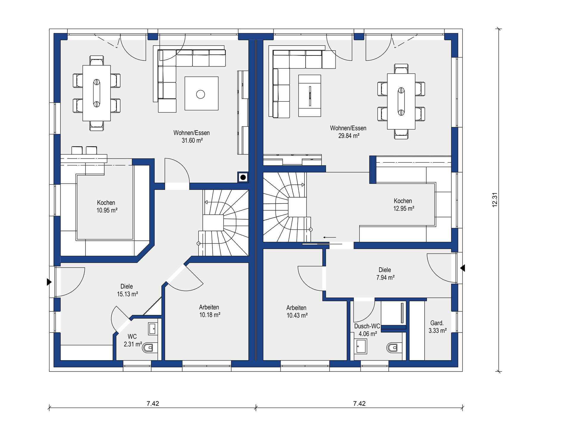
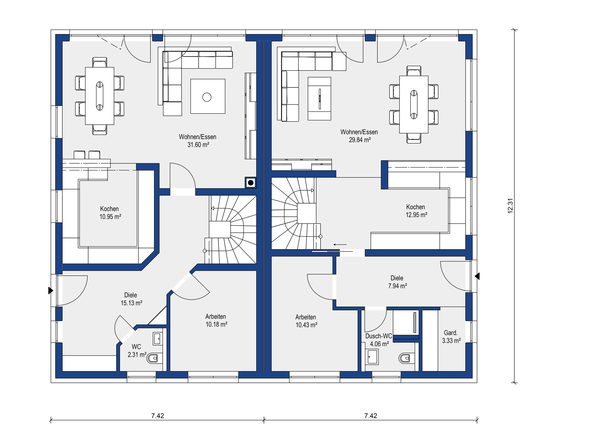
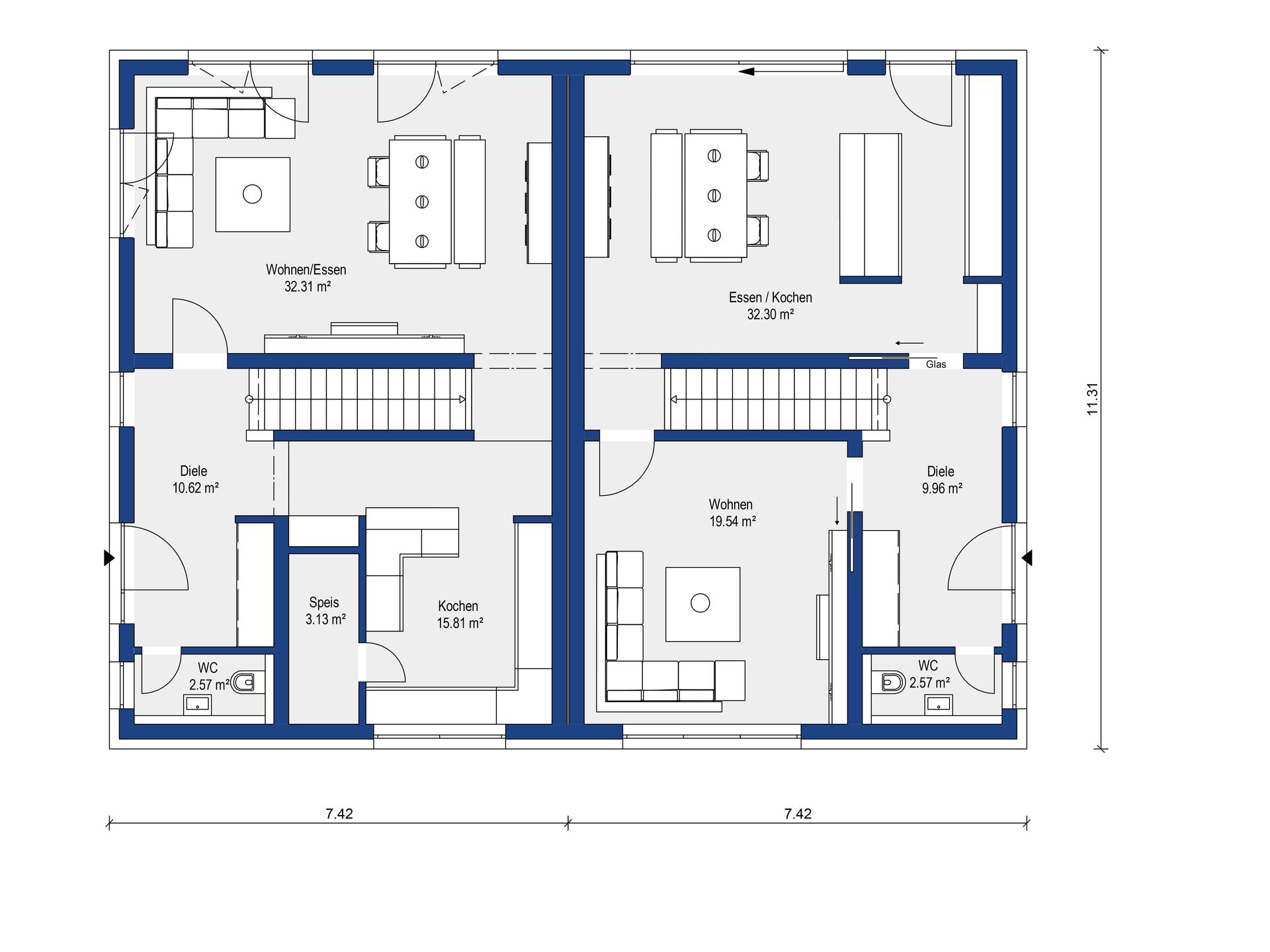
- Außenmaße 7,42 x 12,31 m
- Wohnfläche 131,75 m²
- Nettogrundfläche 266,24 m²
Jasmin Variante Kniestock
mit Keller
- Satteldach
- Dachneigung 28°
- Kniestock 2,25 m
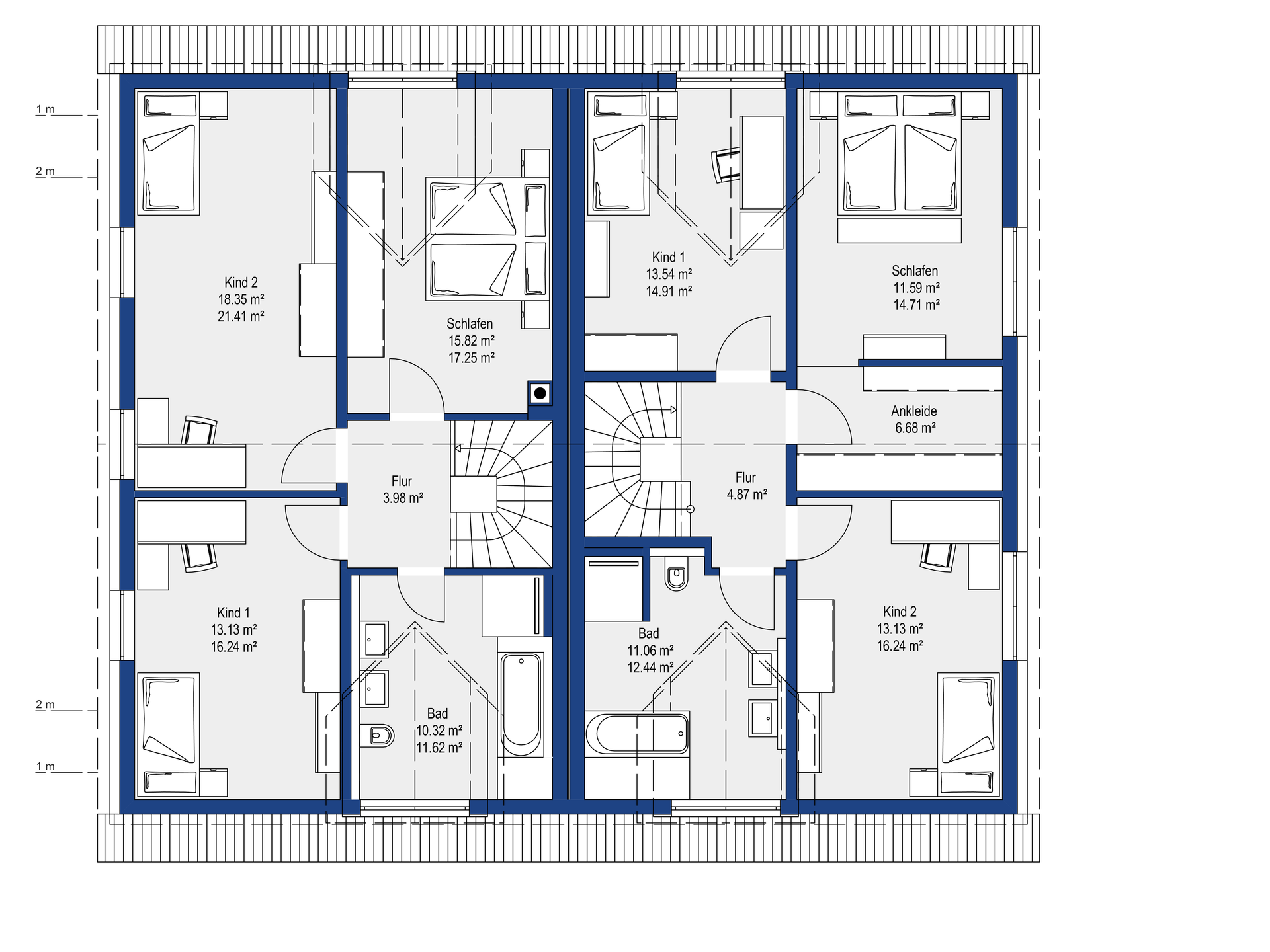
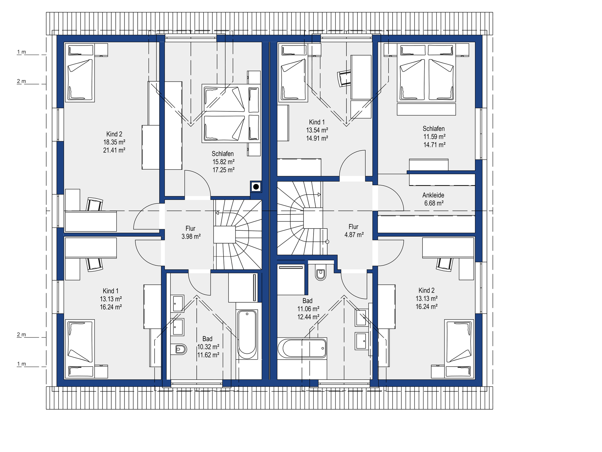
- Außenmaße 7,42 x 12,31 m
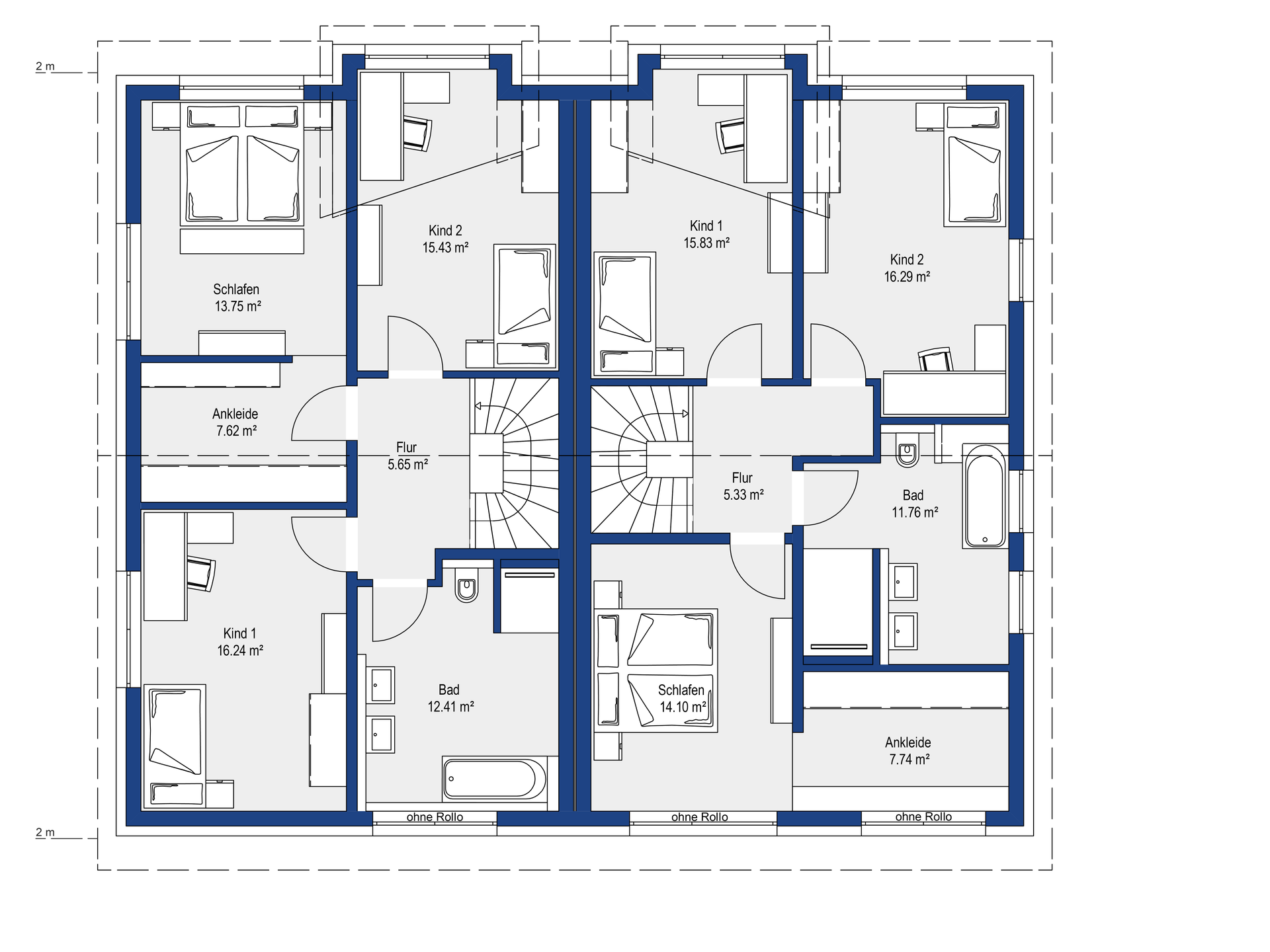
- Wohnfläche 141,86 m²
- Nettogrundfläche 215,16 m²
Jasmin Variante Vollgeschoss
mit Keller - Spitzbodenausbau möglich
- Satteldach
- Dachneigung 28°
- Außenmaße 7,42 x 12,31 m
- Wohnfläche 173,13 m²
- Nettogrundfläche 265,59 m²












