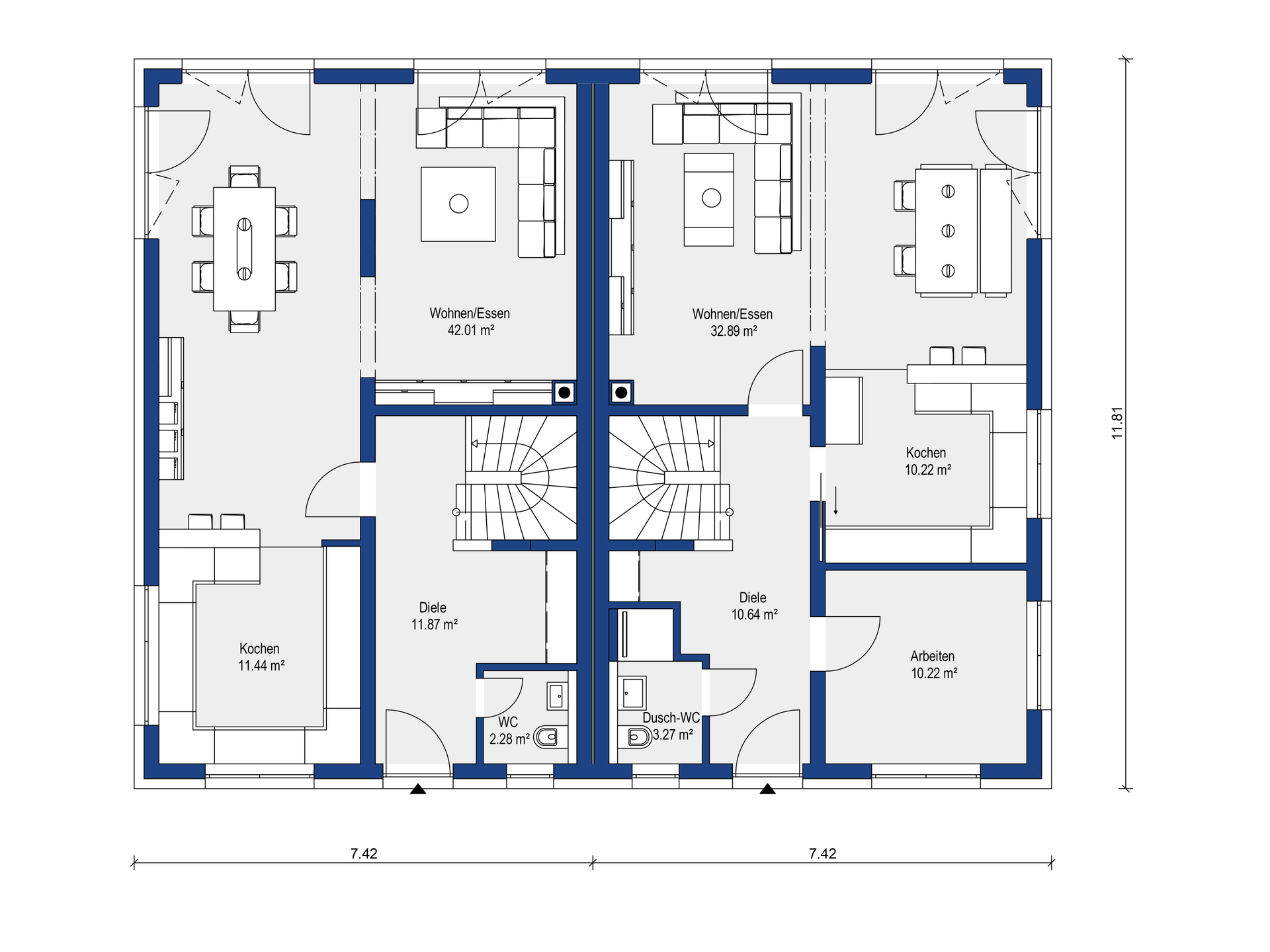
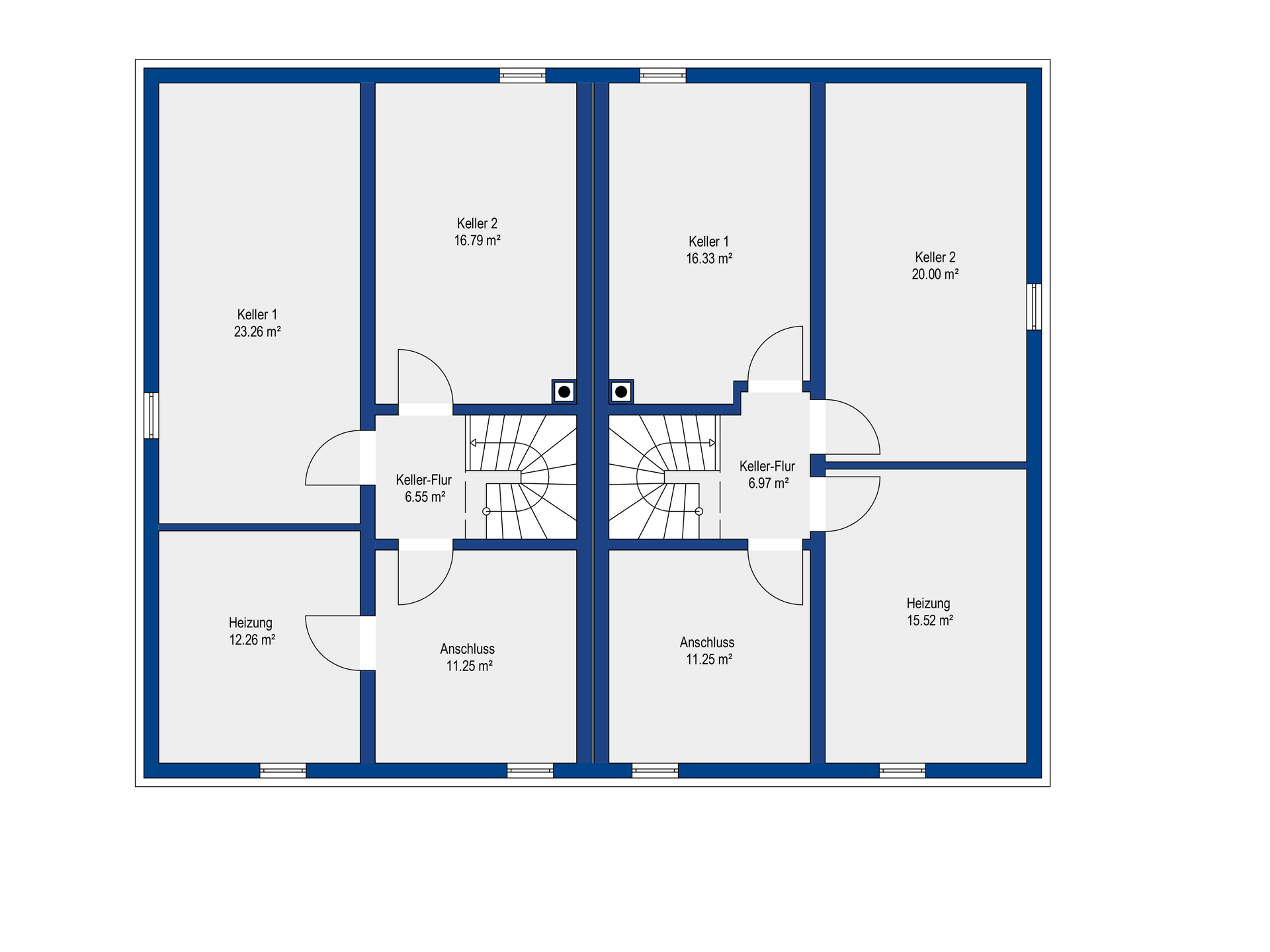
Pläne herunterladen und inspirieren lassen!
Hier finden Sie unsere Haus-Varianten im Maßstab 1:100.
Nutzen Sie die Pläne für eine detaillierte Ansicht und zur besseren Planung Ihres Hauses.
Larissa
mit Keller
- Walmdach
- Dachneigung 23°
- Außenmaße 7,42 x 12,31 m
- Wohnfläche 134,42 m²
- Nettogrundfläche 207,46 m²




