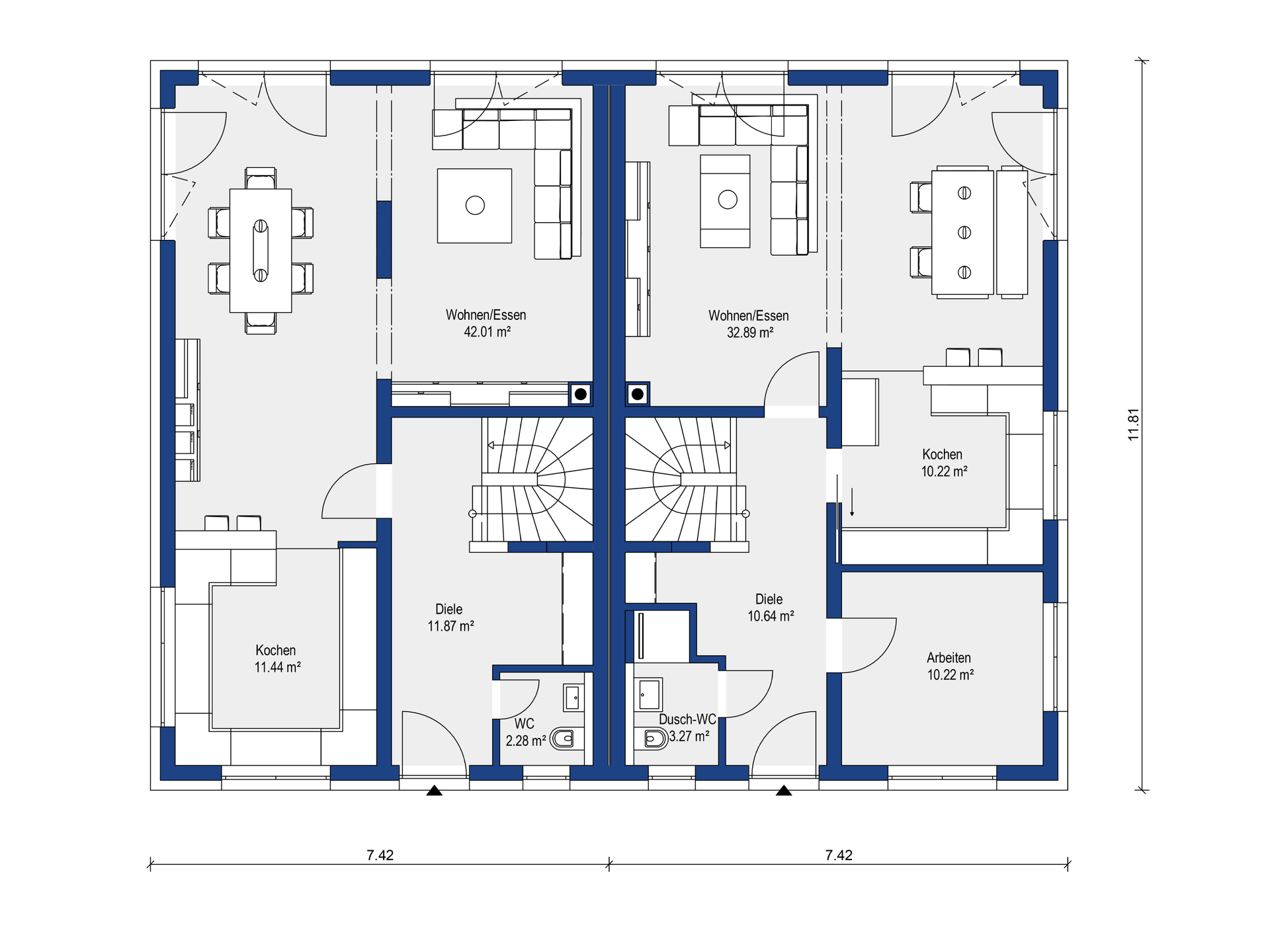
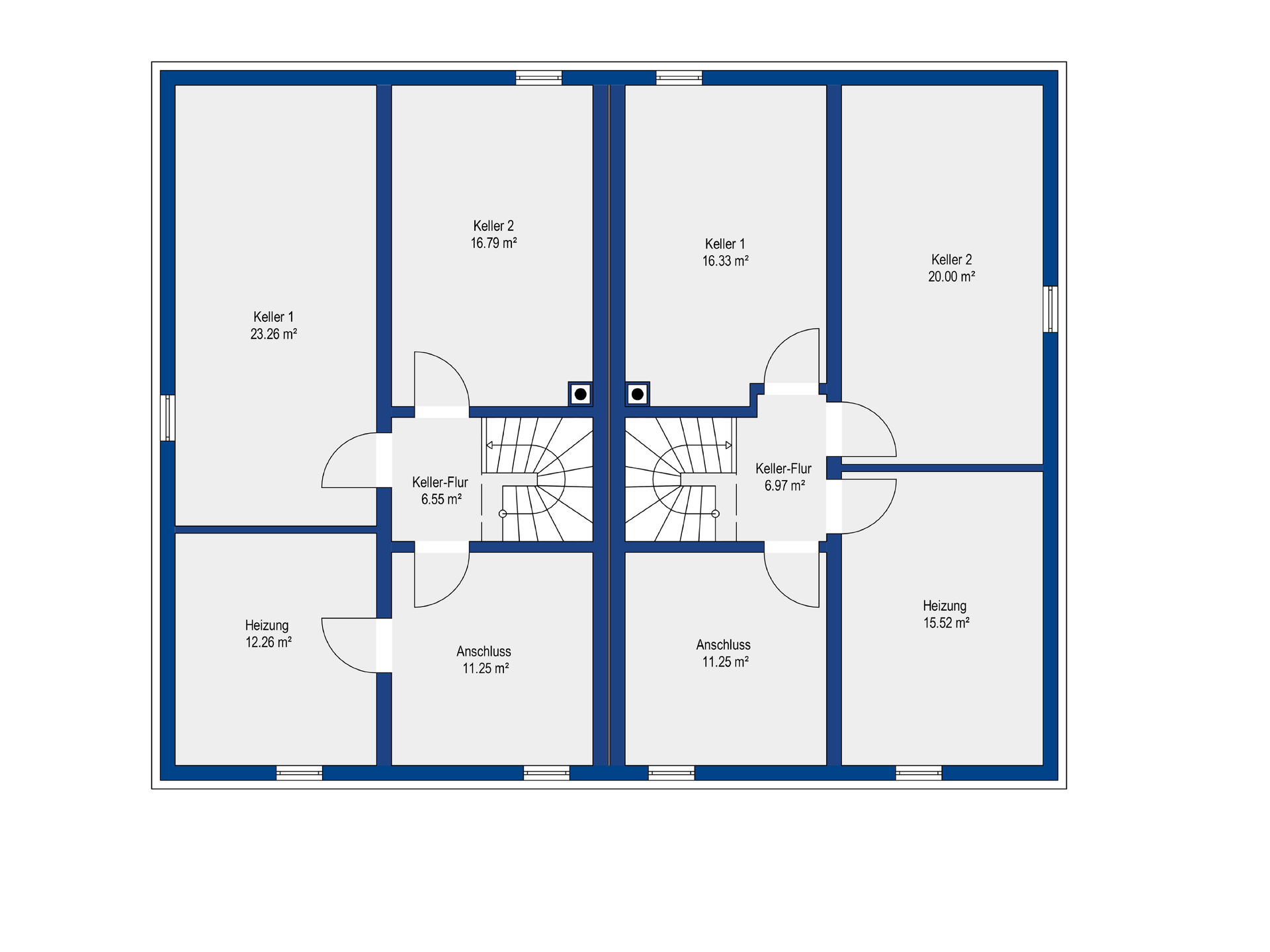
Pläne herunterladen und inspirieren lassen!
Hier finden Sie unsere Haus-Varianten im Maßstab 1:100.
Nutzen Sie die Pläne für eine detaillierte Ansicht und zur besseren Planung Ihres Hauses.
Simone
mit Keller
- Flachdach
- Außenmaße 7,42 x 12,31 m
- Wohnfläche 134,11 m²
- Nettogrundfläche 204,76 m²




