Pläne herunterladen und inspirieren lassen!
Hier finden Sie unsere Haus-Varianten im Maßstab 1:100.
Nutzen Sie die Pläne für eine detaillierte Ansicht und zur besseren Planung Ihres Hauses.
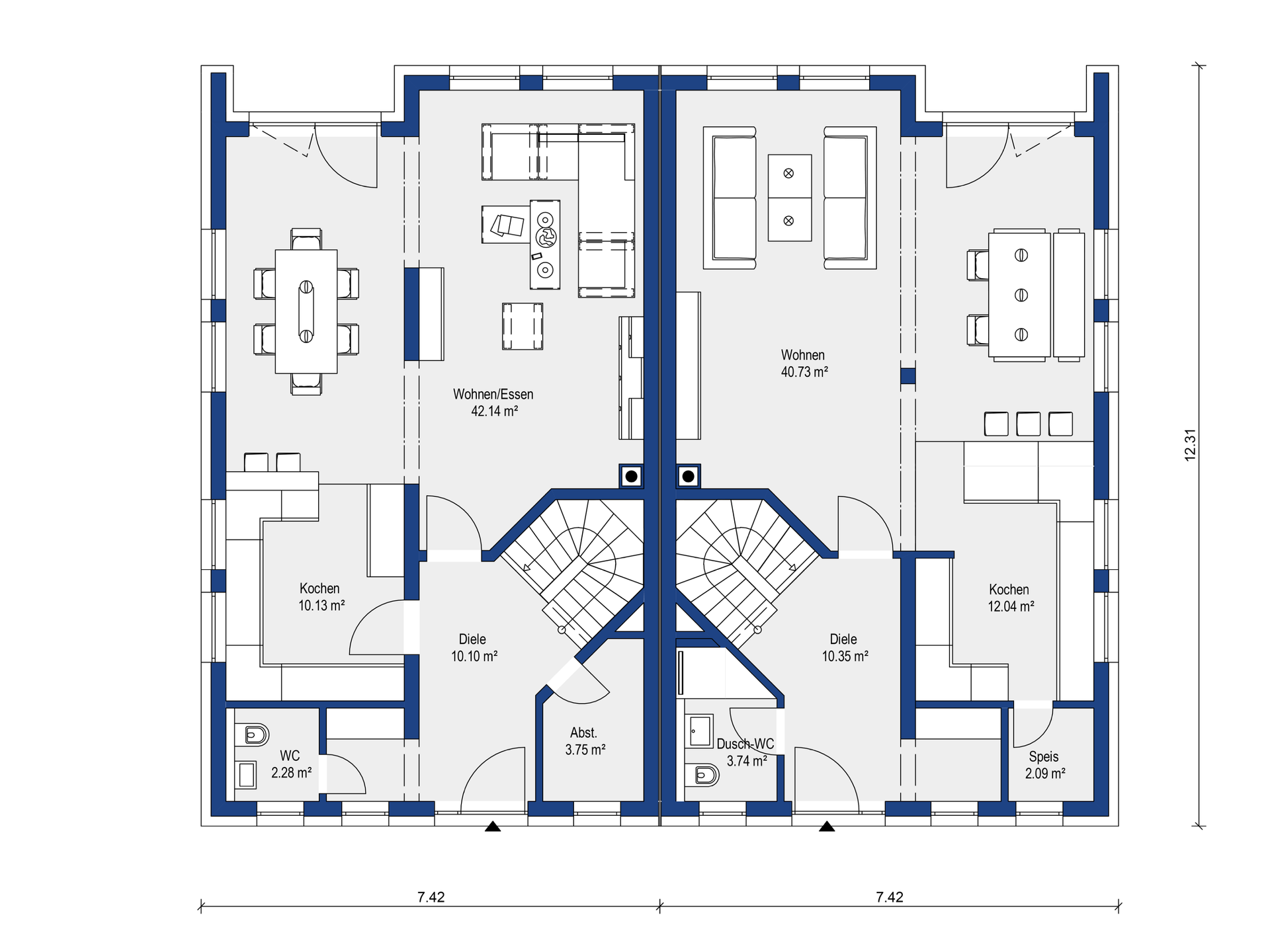
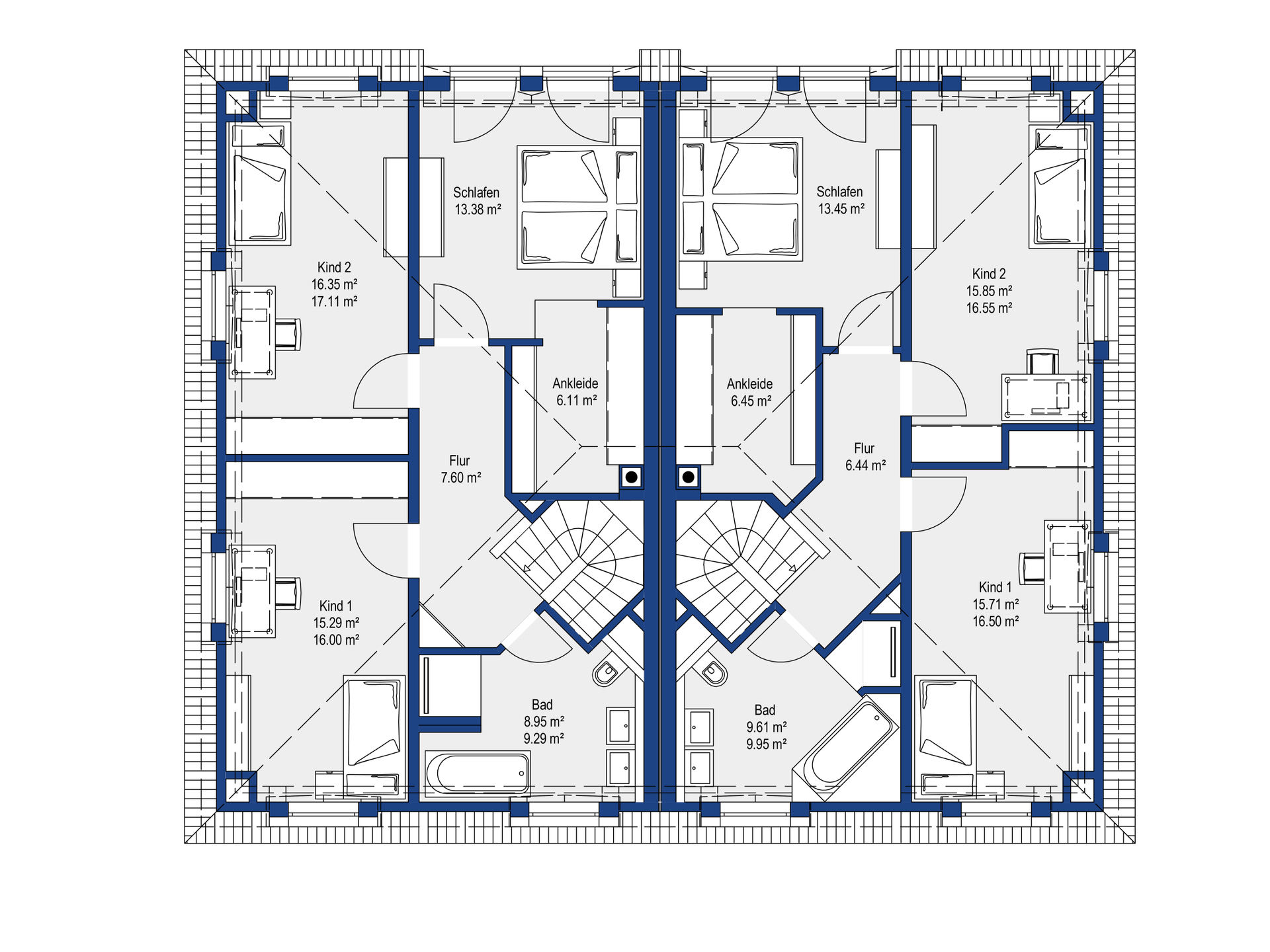
Tamara
mit Keller
- Mansarddach
- Außenmaße 7,42 x 12,31 m
- Wohnfläche 136,08 m²
- Nettogrundfläche 208,97 m²




