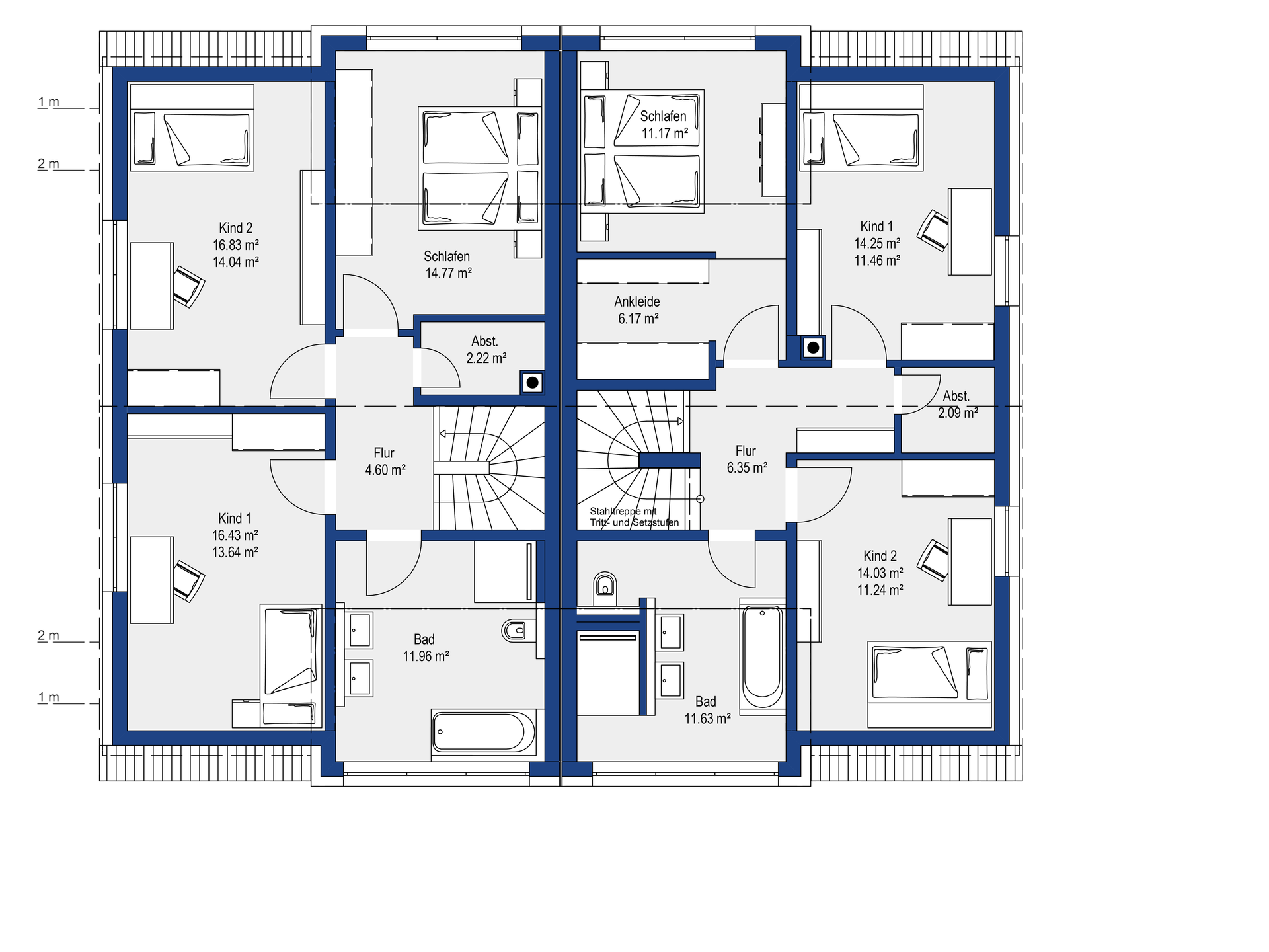
Pläne herunterladen und inspirieren lassen!
Hier finden Sie unsere Haus-Varianten im Maßstab 1:100.
Nutzen Sie die Pläne für eine detaillierte Ansicht und zur besseren Planung Ihres Hauses.
Yvonne
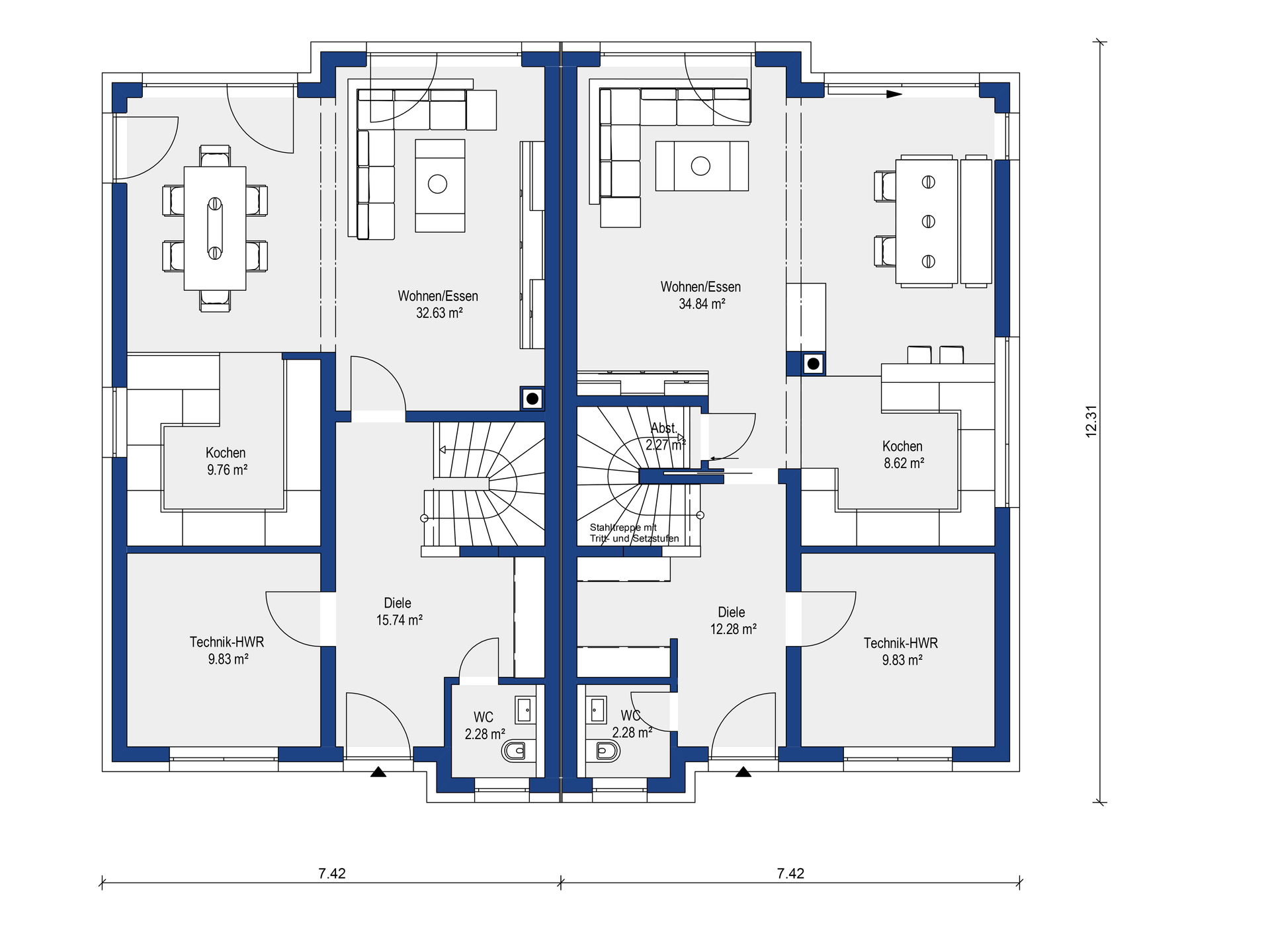
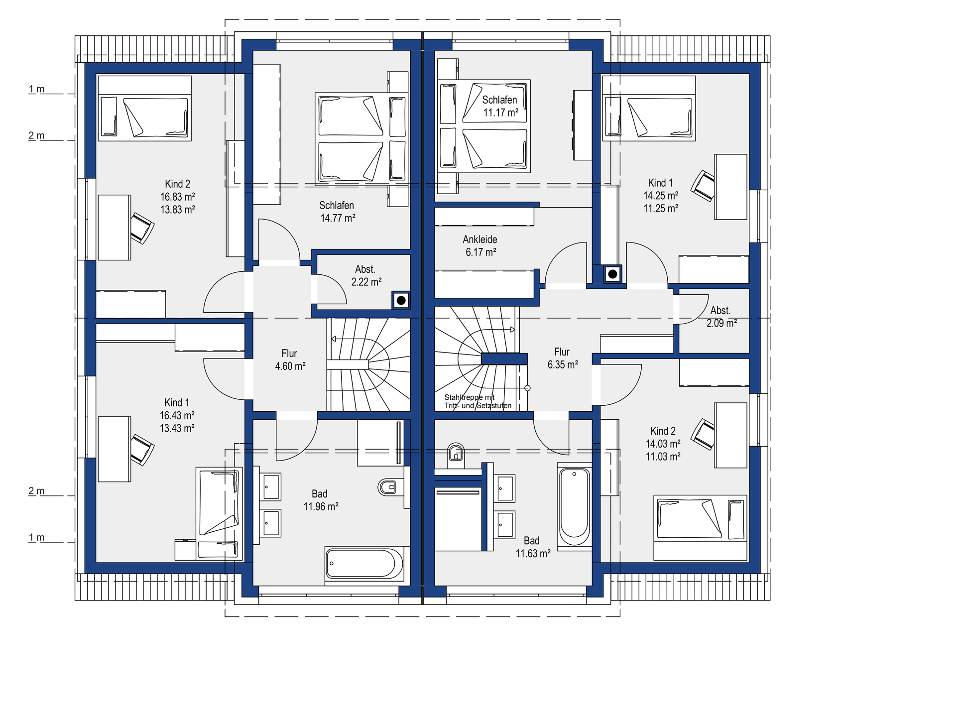
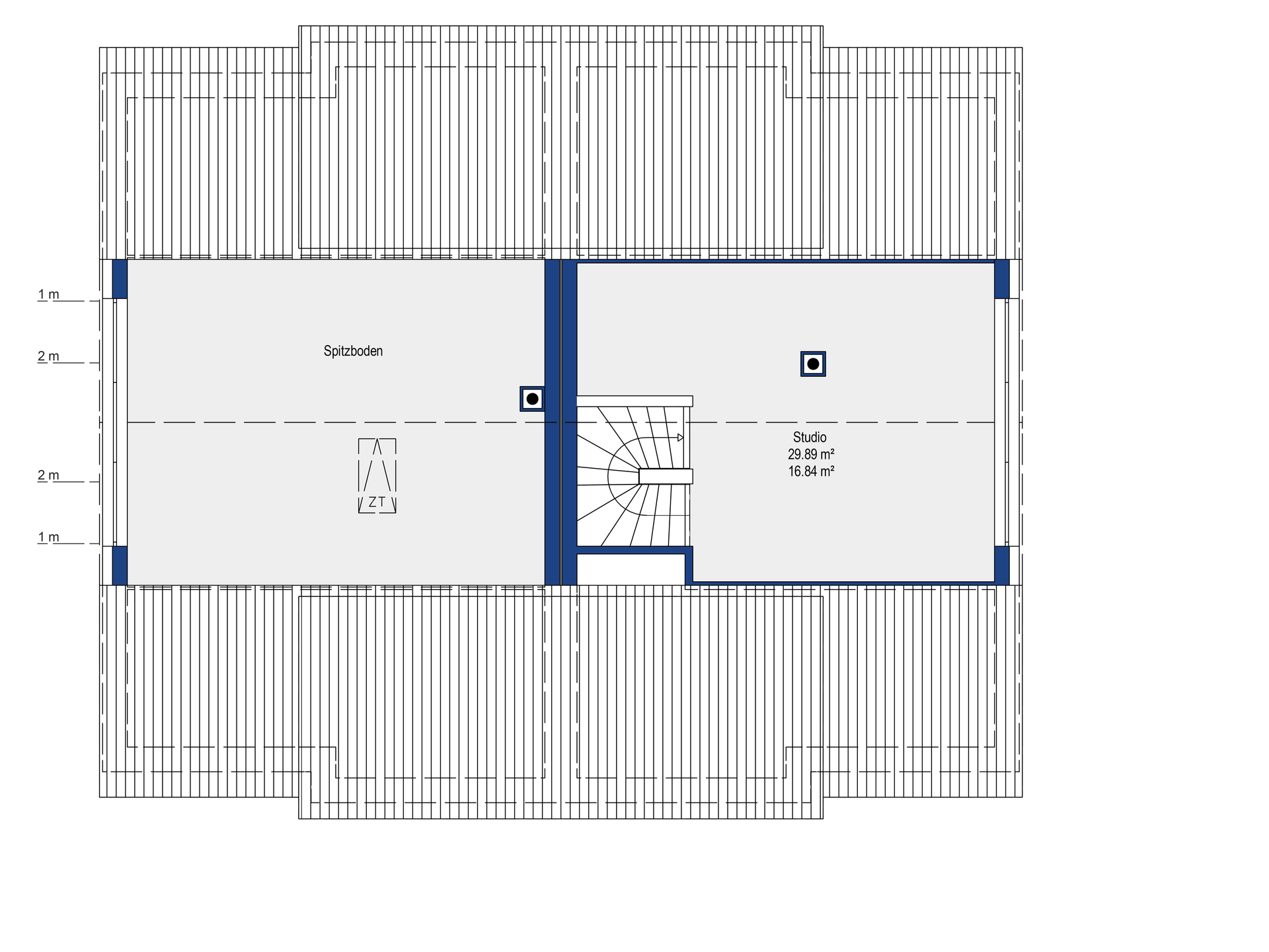
ohne Keller - Spitzbodenausbau möglich
- Satteldach
- Dachneigung 45°
- Kniestock 50 cm
- Außenmaße 7,42 x 12,31 m
- Wohnfläche 131,05 m²
- Nettogrundfläche 173,08 m²
Yvonne
ohne Keller - Spitzbodenausbau möglich
- Satteldach
- Dachneigung 45°
- Kniestock 50 cm
- Außenmaße 7,42 x 12,31 m
- Wohnfläche 131,05 m²
- Nettogrundfläche 173,08 m²





